• The building of "Morozovo-House", Dmitrovsky District, Moscow Region (the 2nd turn)
  • LOCATION : Russia, Moscow region, Dmitrov District, D. Morozovo
  • SIZE : 70000 M2
  • DATE : 2011
  • CLIENT : LLC “RemStroyService”
  • TEAM : B. Shkolnikov (head of the author team), L. Minina, A. Shkolnikov
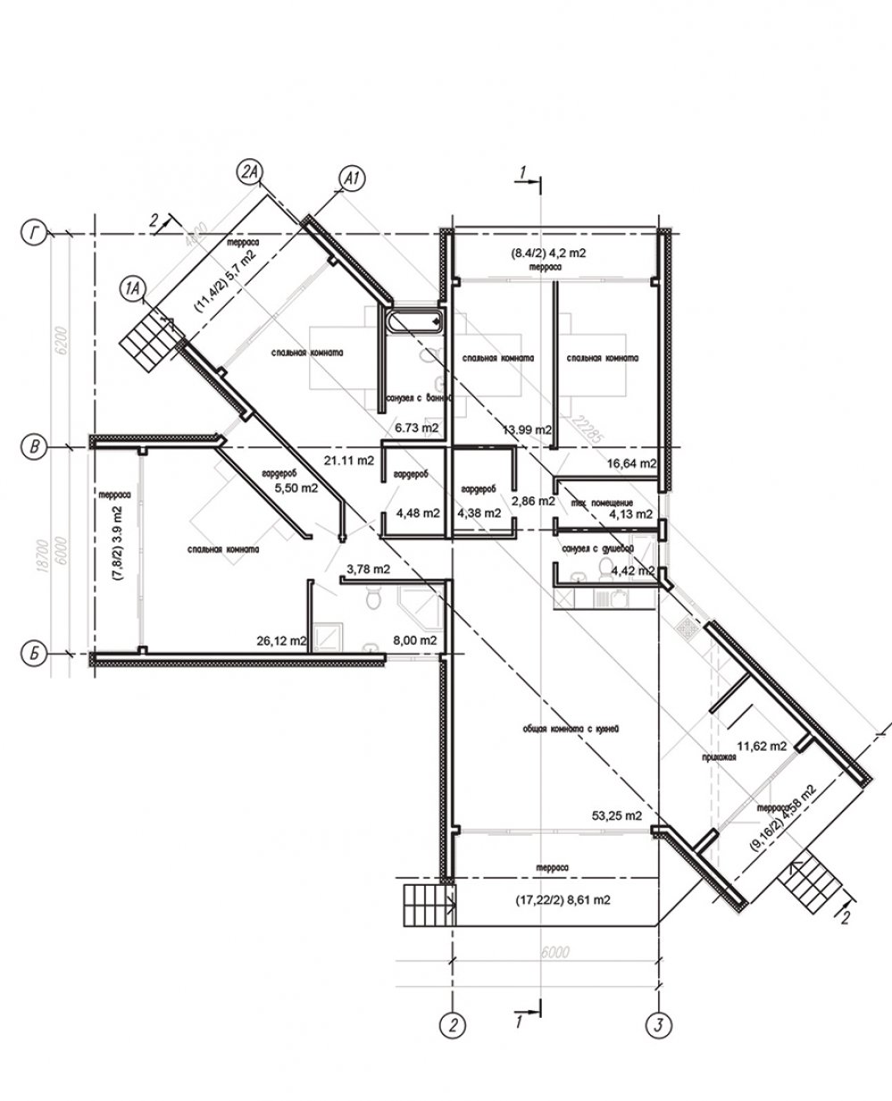
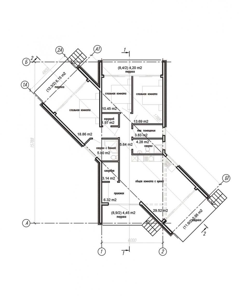
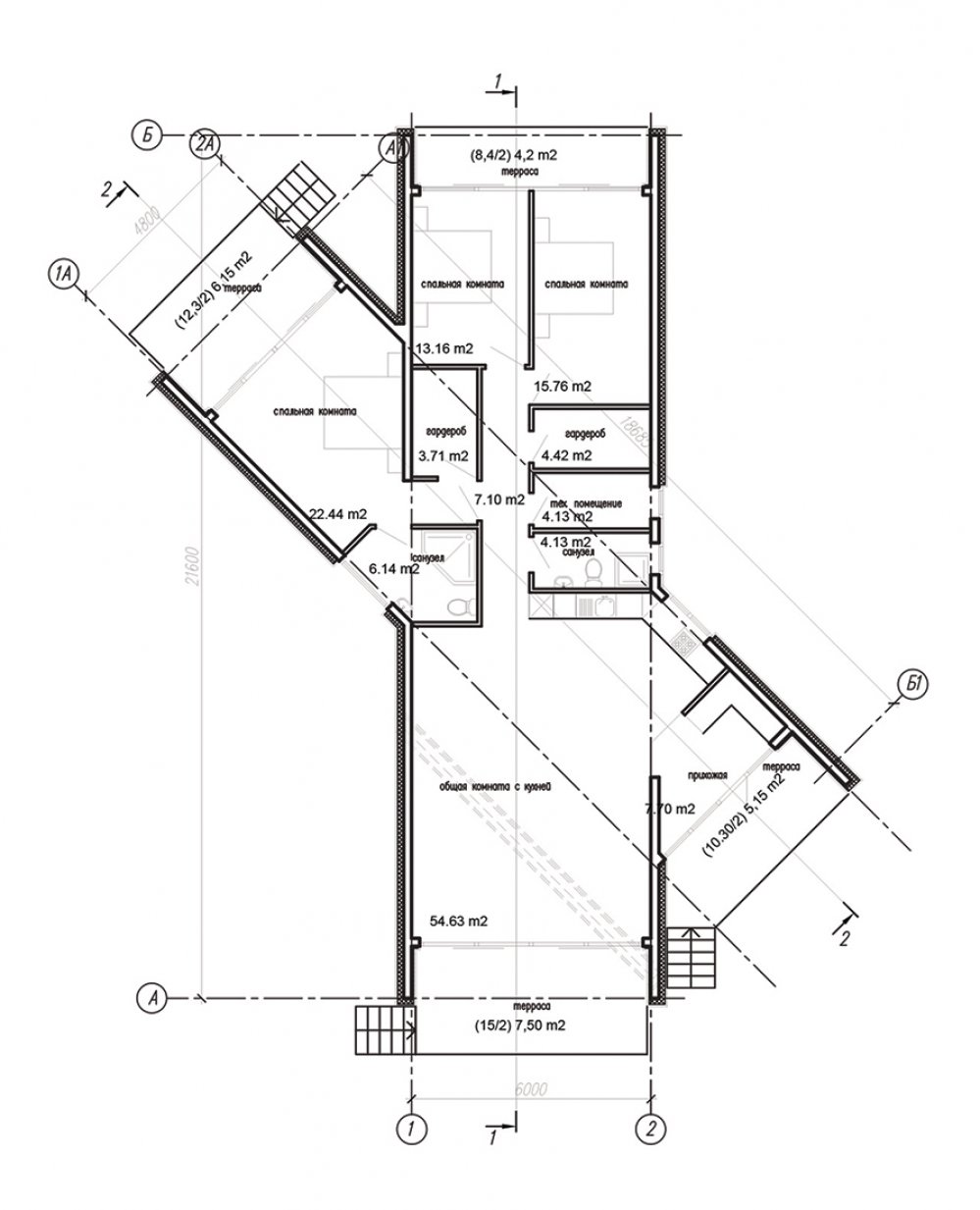
  • The settlement is located on a narrow, elongated site, most of which adjoins a forested area. The residential houses  are designed according to an “inside-out” principle and positioned to preserve existing trees to the greatest extent  possible, with glazed end facades and open terraces. The image of the Children’s Center, designed in white, continues  and develops the architectural theme of suburban development.