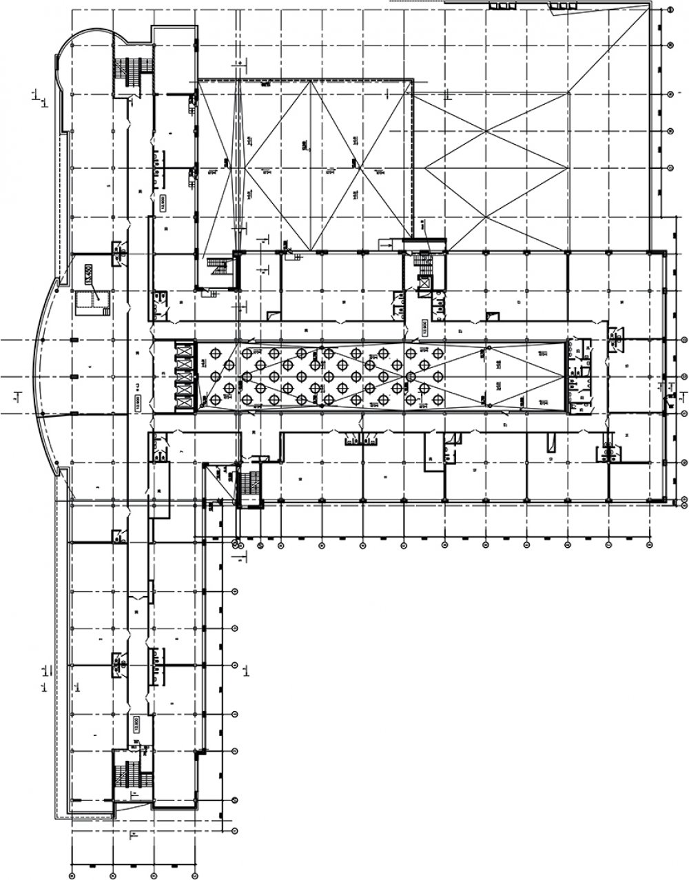
• The business center with the shopping mall and the parking, Dzerzhinskogo Avenue, Minsk
  • LOCATION : Minsk, Belarus
  • SIZE : 65000 M2
  • DATE : 2006
  • CLIENT : Foreign LLC "Rubiroz-International"
  • TEAM : B. Shkolnikov (head of the author team) A. Duzhinskaya, T. Volskaya, G. Stratiyenko, A. Kravtsov. Constructors: V. Shipitsa, D. Kurlukov
  • The volume of the buildings is created by the vertical division of the offices located on the ground and the top floors of the shopping center.

    The business center placement along the city main road defined the combination of longitudinal and cross structure of the complex, on the crossing of which multilevel public spaces are located.