- Building of JSCB “Poisk”, Logoyskiy tract, Minsk
- LOCATION : Minsk, Belarus
- SIZE : - M2
- DATE : 1994
- CLIENT : JSCB “Poisk”
- TEAM : B. Shkolnikov (head of the author team) V. Romanenko, E. Urban
-
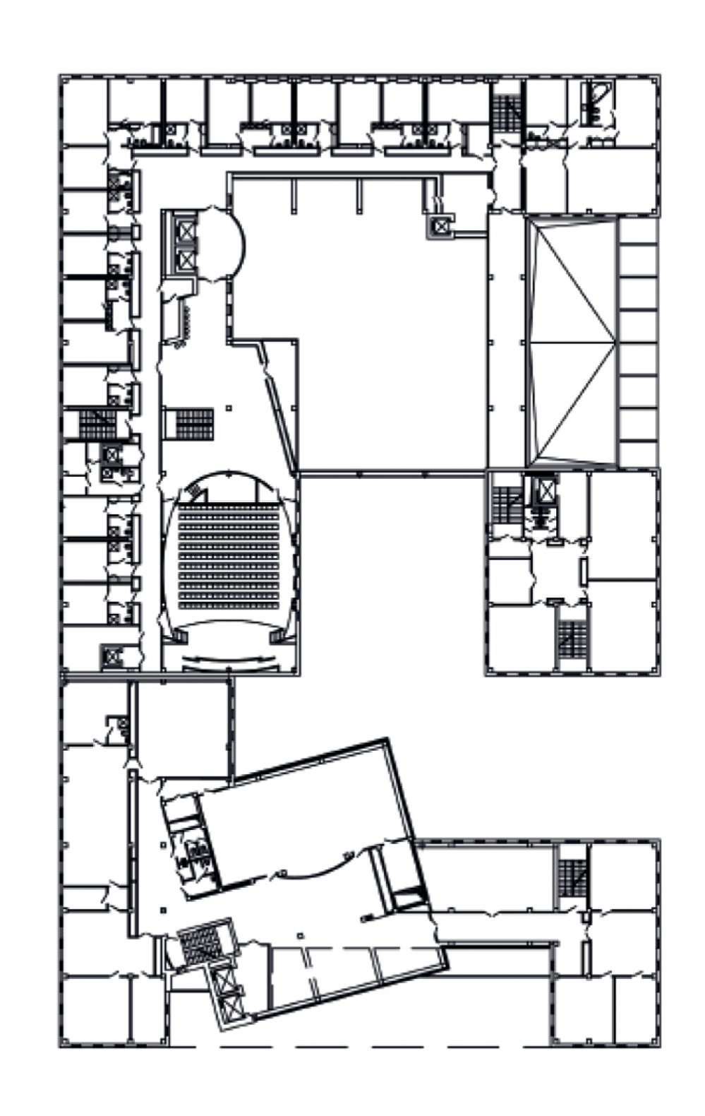
The volume of the building is formed by blocks of different functional use. The emphasis of the composition is the 11-storeyed tower, supported by a strong U-shaped volume, in which the bank is located. The hotel and office blocks are designed in such a way that they create the interior space, which connects all the functional blocks and creates the recreational zone.